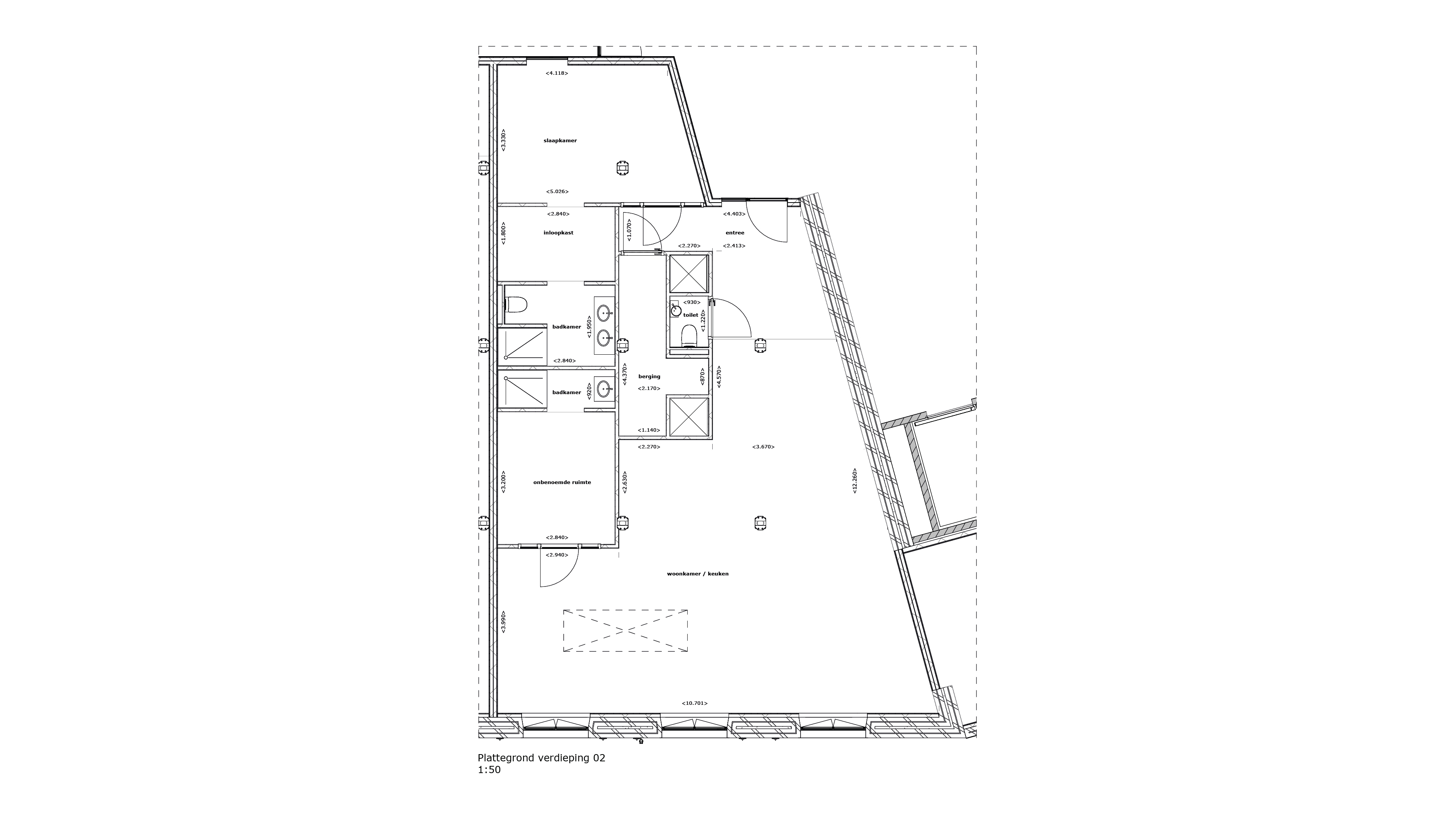
Dit appartement kent vele kwaliteiten. Zoals de aanwezigheid van een masterbedroom van formaat; een slaapgedeelte waar ook makkelijk een werkplek kan worden gemaakt met aansluitend een walk-incloset en een badkamer en suite met een douche, twee wastafels en een toilet. En een tweede slaapkamer, ook met badkamer en suite. Maar onmiskenbaar zal bij binnenkomst de indrukwekkende leefruimte van ca. 65 m2 u elke weer aangenaam verrassen. Hierin is alle plek van de wereld voor een royale eettafel, een woonkamer met lekker luie banken en stoelen en een flink kookeiland. Met een iets andere indeling maken musici zelfs plek voor een vleugel. Of u creëert een bescheiden bibliotheek. Er is meer dan genoeg kastruimte in verschillende kastenwanden en mocht dat niet voldoende zijn; midden in het appartement bevindt zich ook nog een grote berging waarin sowieso de wasmachine en droger een plek krijgen.
De vermelde woonoppervlaktes zijn indicatief en niet bindend en kunnen worden gewijzigd in het kader van de projectontwikkeling. Schepers Vastgoed behoudt zich het recht voor om wijzigingen aan te brengen in het project, evenals wijzigingen of aanvullingen op de verstrekte informatie.

