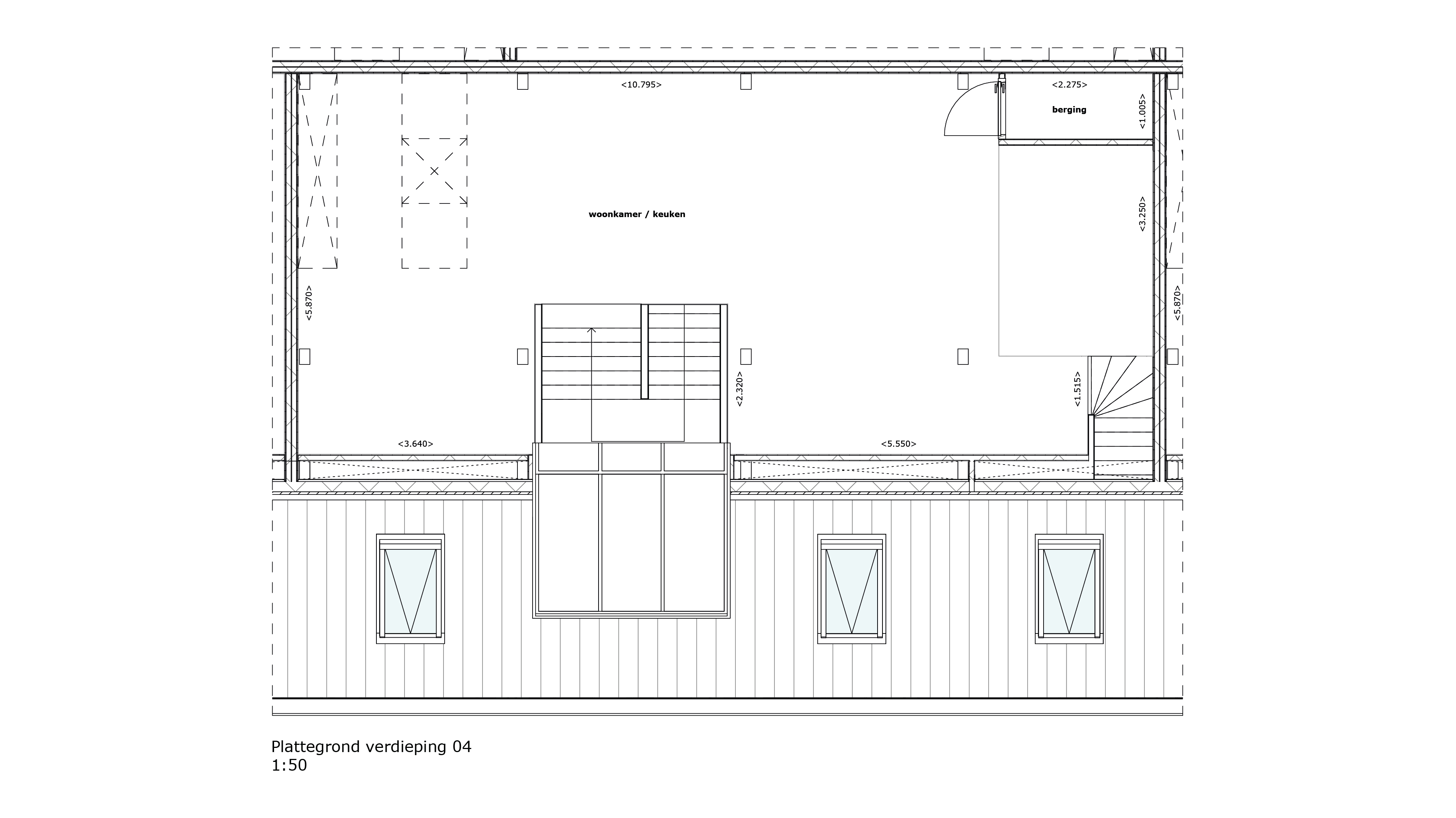
In dit dubbellaags appartement komen comfort, ruimte, luxe, sfeer en plezier samen in een zee aan daglicht. De twee woonlagen bevinden zich op de derde en vierde etage van het gebouw. Het royale aantal vierkante meters, in totaal ca. 144 m2, is ongeveer gelijk verdeeld over de twee woonlagen. De entree bevindt zich op de derde etage, een verdieping die in haar geheel in beslag wordt genomen door twee grote slaapkamers, beide met een badkamer en suite en een XL-kledingkast. Beide badkamers zijn voorzien van wastafels en douches, de grootste kamer beschikt ook over een eigen toilet. Ook op deze verdieping: een separaat toilet voor bezoekers. En: naast het trappenhuis en de tweede slaapkamer bevindt zich een ruimte die via de bovenverdieping wordt betreden en door de afgeschermde ligging bijzonder geschikt is als werkkamer of gameroom. De vierde etage wordt betreden via een brede trap met entresol. Dit is wellicht het meest bijzondere plekje van het appartement, want hier bevindt zich een gigantisch dakraam van 18 m2 dat in zijn geheel elektrisch naar boven geopend kan worden. Dat hierdoor het appartement baadt in daglicht, mag duidelijk zijn. Maar door het dakraam te openen ontstaat een inpandige buitenruimte waar u in een comfortabele stoel kunt genieten van een heerlijk uitzicht. Onderaan de trap is een grote open ruimte waar met gemak een grote wijnklimaatkast kan worden geïnstalleerd. Links daarvan is een ruimte die kan worden gebruikt als woonkamer, lounge en eetkamer. Aan de andere kant bevindt zich de grote leefkeuken in een U-opstelling, met aan weerszijden alle ruimte voor een eetbar met minimaal zes zitplaatsen. Achter de keuken is nog een plek om comfortabel te zitten en een boek te lezen.
De vermelde woonoppervlaktes zijn inclusief de loggia. Deze woonoppervlaktes zijn indicatief en niet bindend en kunnen worden gewijzigd in het kader van de projectontwikkeling. Schepers Vastgoed behoudt zich het recht voor om wijzigingen aan te brengen in het project, evenals wijzigingen of aanvullingen op de verstrekte informatie.





