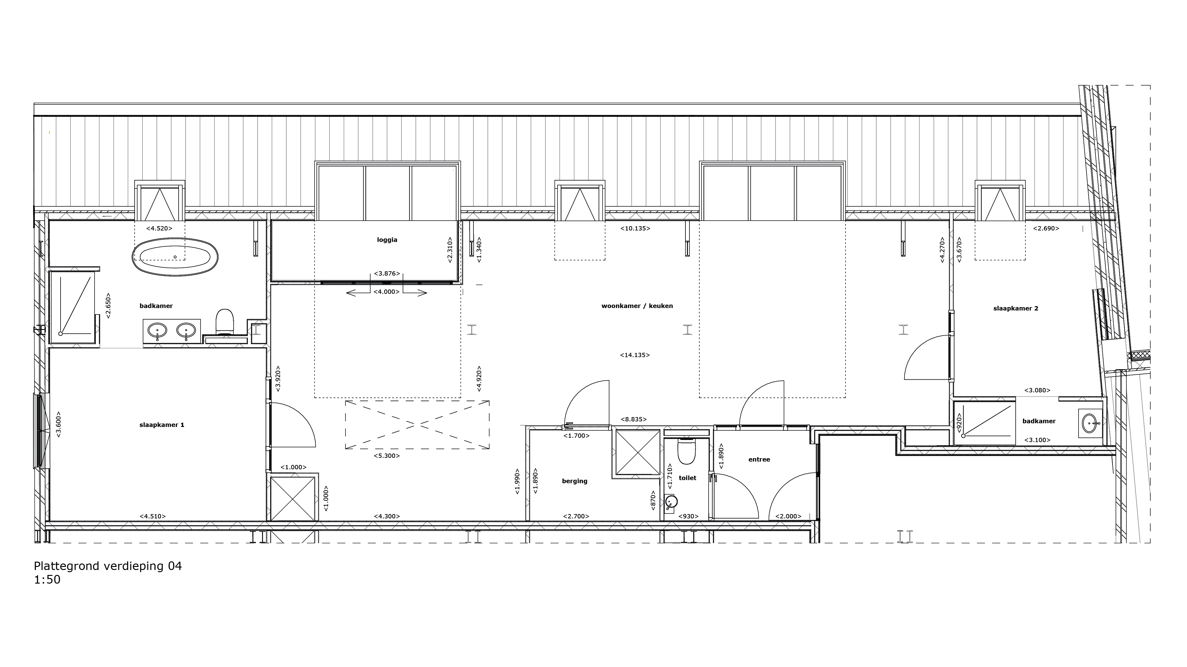
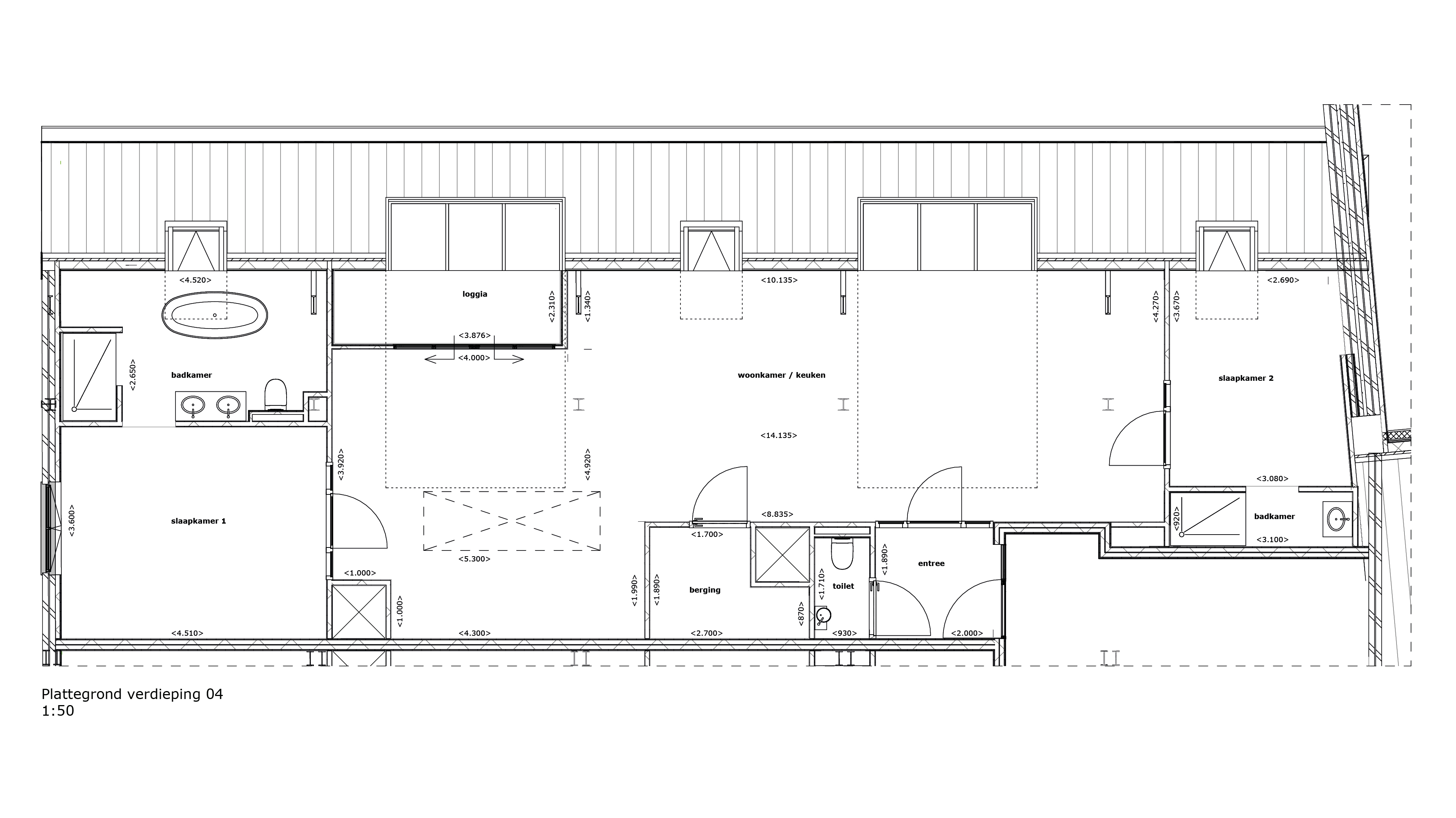
De appartementen in Tourneurs worden instapklaar opgeleverd, wat betekent dat ze voorzien zijn van een volledig ingerichte keuken met inbouwapparatuur, een compleet uitgeruste badkamer, glad gestucte wanden van klasse A en afgewerkte vloeren. In de slaapkamers worden stalen puien met glas geplaatst, en waar mogelijk worden stompe deuren van 2,6 meter hoog geïnstalleerd. Deze hoogwaardige afwerking benadrukt het industriële karakter van het gebouw en biedt tegelijkertijd modern wooncomfort. Laat u inspireren door de unieke combinatie van authentiek design en luxe voorzieningen die deze appartementen te bieden hebben.
De vermelde woonoppervlaktes zijn indicatief en niet bindend en kunnen worden gewijzigd in het kader van de projectontwikkeling. Schepers Vastgoed behoudt zich het recht voor om wijzigingen aan te brengen in het project, evenals wijzigingen of aanvullingen op de verstrekte informatie.

